AK-Studios

Planning Approved – Lambeth Council
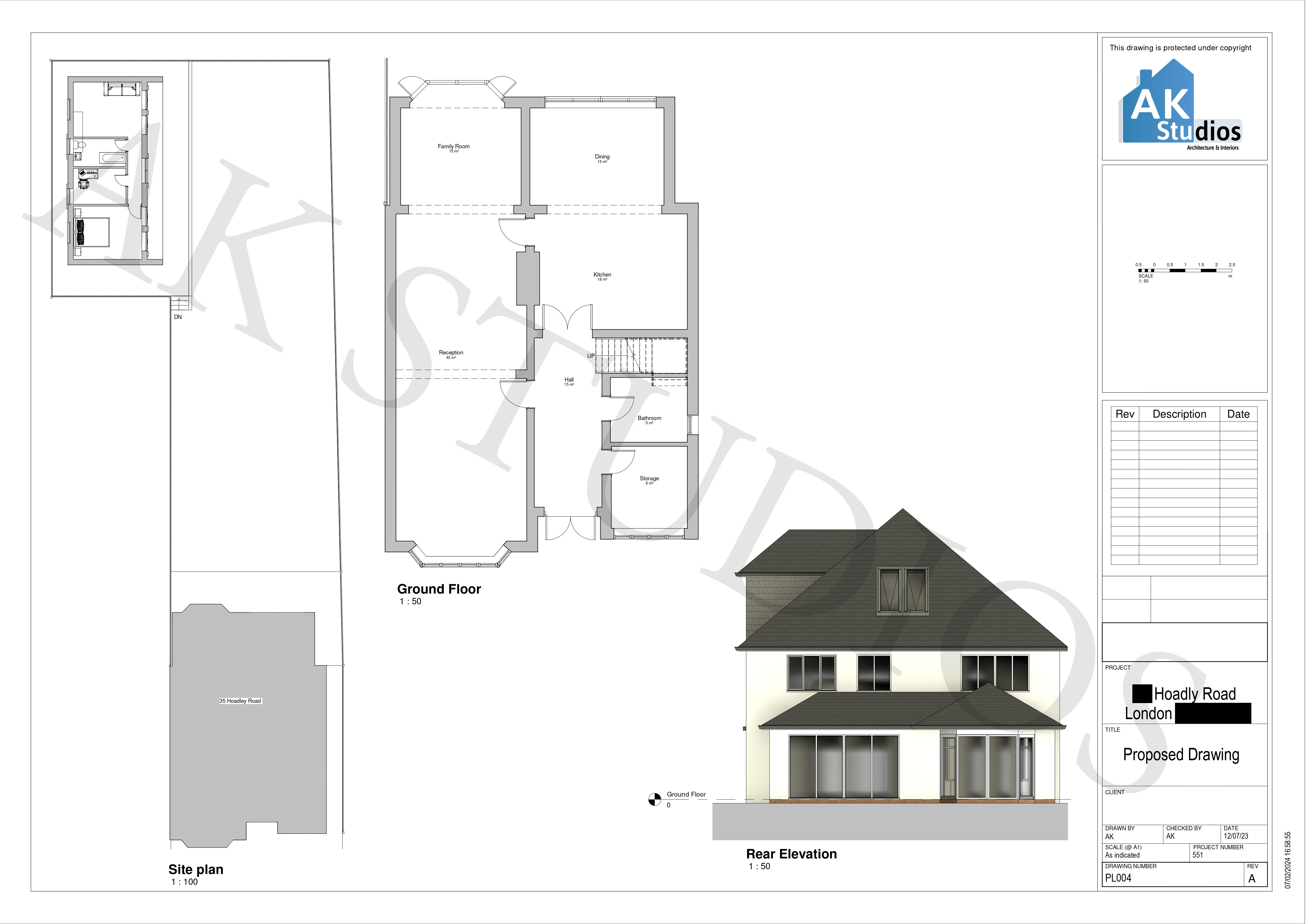
Hoadly Road

Lambeth Hoadly Road Banner

Lambeth Hoadly Road Change of use at the ground floor from a study to a minicab booking office                                                                               …

Details of the Project

Marsworth Church Road Hartley Approval Letter

Lambeth Hoadly Road Approval Letter