AK-Studios

Planning Approved – Sevenoaks District Council
Dynes Road

Sevenoaks Dynes Road Banner
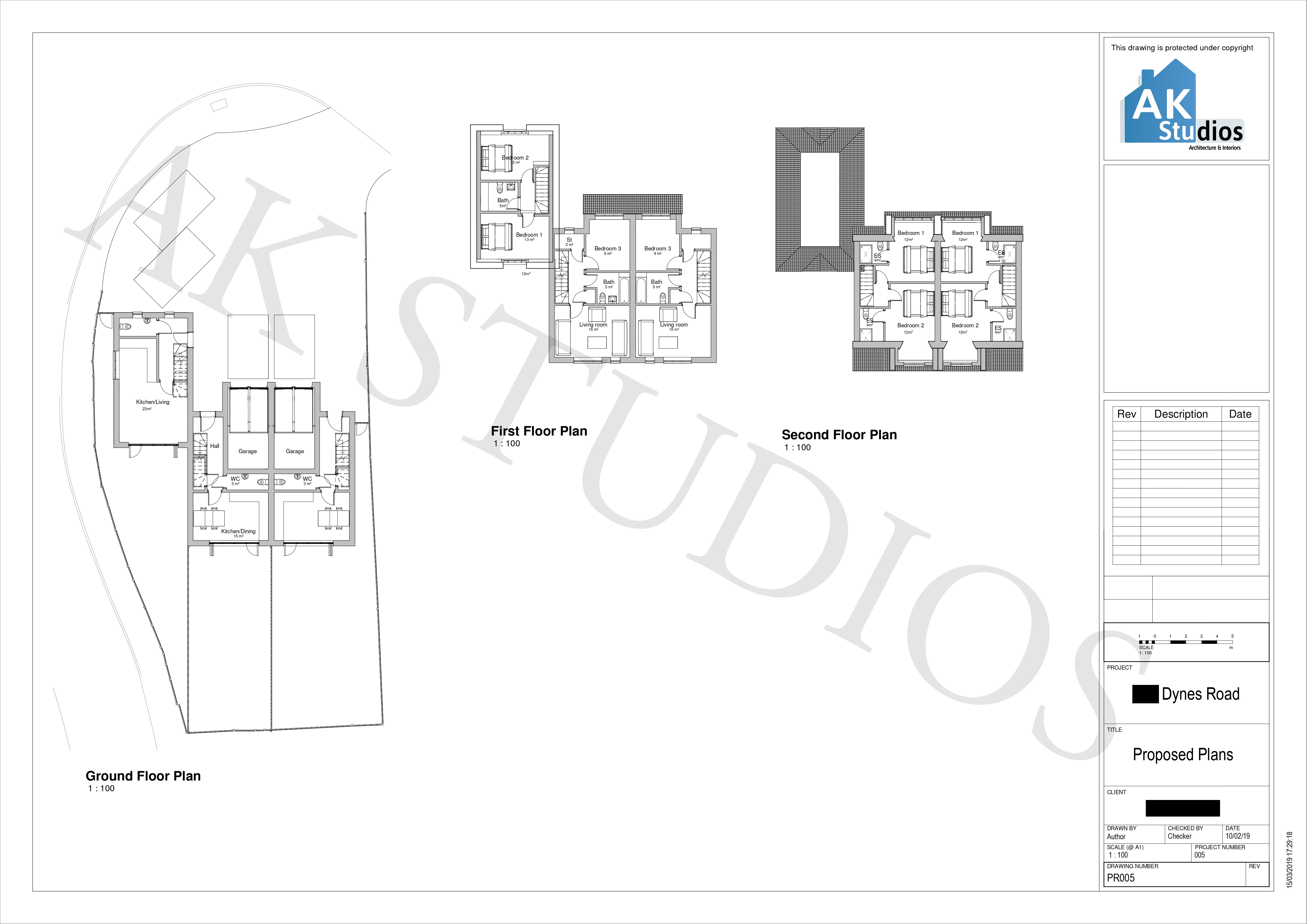
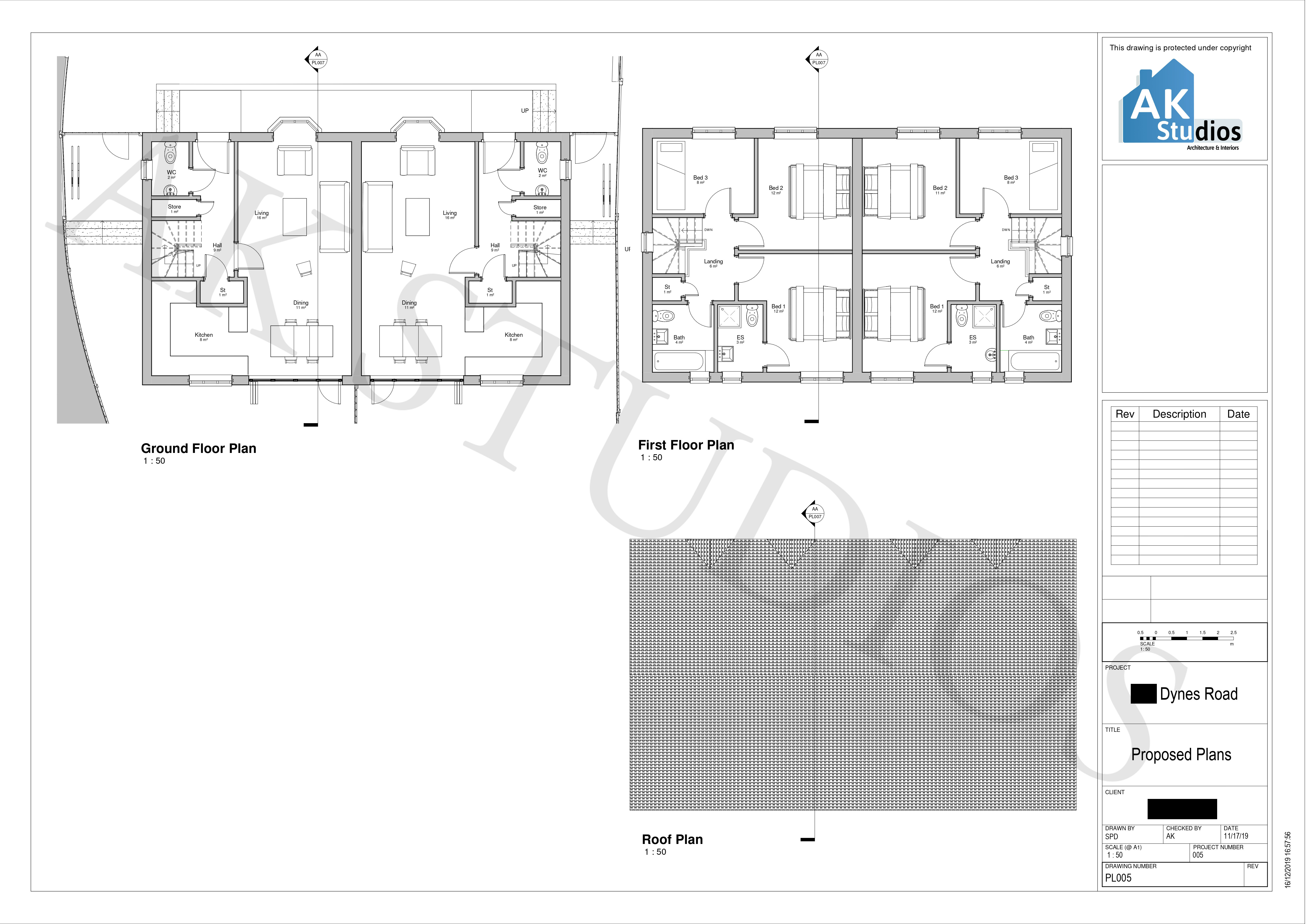
Sevenoaks Dynes Road Demolition of existing 3 bedroom bungalow, erection of 2 new 3 bedroom houses                                                                               …

Details of the Project

Marsworth Church Road Hartley Approval Letter